Мы используем куки-файлы. Соглашение об использовании
Только на Циан

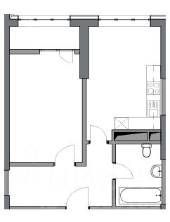
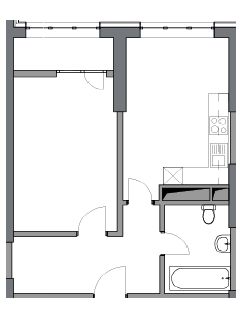
Продается 1-комн. квартира, 61,1 м²

  • ВТБ
    ПСБ
    Совкомбанк
    Альфа-Банк
    Уралсиб
    Банк ДОМ.РФ
    Т-Банк
    МКБ
    Абсолют Банк
    Реальные ипотечные ставки от 9 банков - 5,75% на новостройки, 16,9% на вторичку
    Перейти в сервис
Общая площадь61,1 м²
Этаж13 из 20
Год сдачи2031
ДомНе сдан
Продаётся 1-комнатная квартира в строящемся доме (Дом 1), срок сдачи: I-кв. 2031, общей площадью 61.1 кв.м., на 13 этаже. Новый жилой комплекс "Ахмат" от застройщика "ГорСтройТорг" расположен по адресу: Чеченская Республика, г. Шали, ул. Учительская

О квартире

Тип жилья

Новостройка

Общая площадь

61,1 м²

Высота потолков

2,9 м

О доме

Количество лифтов

5 пассажирских, 1 грузовой

Тип дома

Монолитно-кирпичный

Пандус

Есть

Похоже на то, что вы ищете?
Ипотечный калькулятор
  • Базовая
  • Семейная
  • ИТ-ипотека
  • 20%
  • 30%
  • 40%
  • 50%
лет
  • 10 лет
  • 20 лет
  • 30 лет
Загружаем предложения от застройщика и банков

Расположение

Корпус проверен наш.дом.рф
Обновлено 19 мая 2025
  • Нет в реестре проблемных объектов
  • Застройщик не банкрот
  • Есть эскроу счёт

Ещё квартиры в жилом комплексе

202 квартиры в продаже · Сдача в 1 кв. 2031
Консультант
Циан
  • 5 лет 10 месяцев на Циане
  • 38344 объявления
  • 4 338 100 ₽
    Цена за метр
    71 000 ₽/м²
    Условия сделки
    долевое участие (214-ФЗ)
    Консультант
    Циан