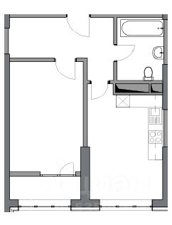
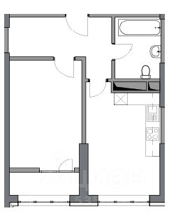
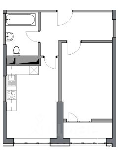
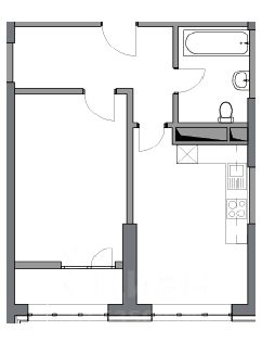
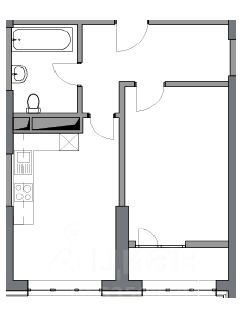
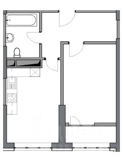
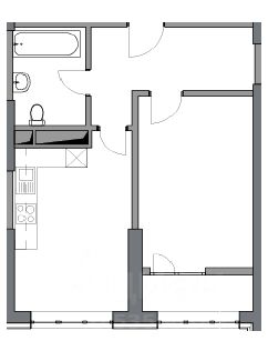
Продаётся 1-комнатная квартира в строящемся доме (Дом 3), срок сдачи: I-кв. 2031, общей площадью 54.1 кв.м., на 18 этаже. Новый жилой комплекс "Ахмат" от застройщика "ГорСтройТорг" расположен по адресу: Чеченская Республика, г. Шали, ул. Учительская
Продаётся 1-комнатная квартира в строящемся доме (Дом 3), срок сдачи: I-кв. 2031, общей площадью 60.3 кв.м., на 11 этаже. Новый жилой комплекс "Ахмат" от застройщика "ГорСтройТорг" расположен по адресу: Чеченская Республика, г. Шали, ул. Учительская
Продаётся 1-комнатная квартира в строящемся доме (Дом 3), срок сдачи: I-кв. 2031, общей площадью 61.1 кв.м., на 18 этаже. Новый жилой комплекс "Ахмат" от застройщика "ГорСтройТорг" расположен по адресу: Чеченская Республика, г. Шали, ул. Учительская
Продаётся 1-комнатная квартира в строящемся доме (Дом 3), срок сдачи: I-кв. 2031, общей площадью 52.8 кв.м., на 5 этаже. Новый жилой комплекс "Ахмат" от застройщика "ГорСтройТорг" расположен по адресу: Чеченская Республика, г. Шали, ул. Учительская
23-й Дубайский дом
Продается однокомнатная квартира(переуступка) с видом на новый проспект Путина. Однакомнатные квартиры сейчас все разобрали, в продаже их нет.
Только наличный расчет!!!
ЖК нaходится на новoм pайoне Путина.
В пешей дoступнocти от домa будeт находитьcя пeший бульвaр (прототип бульвaрa Эcамбаевa), мечеть и паpк.
Дом состоит из двух подъездов 8-10 этажных частей!
- Подземный паркинг;
- Три лифта с доводом на генераторах
- Высота потолков 3.10;
- Центральное отопление;
- Фасад из дорогого материала.
-Детские площадки.
-Зоны отдыха и многое другое.
Сдача объекта в 2025 году.
Продается студия в Дубайском доме.
За домом строится огромный парк с самым большим музыкальным фонтаном на Северном Кавказе, открытие которого запланировано на октябрь текущего года. Вид из окна частично на этот парк.
Рядом строится садик, общеобразовательная школа и IT школа
УКАЗАНА ПОЛНАЯ СТОИМОСТЬ СТУДИИ!
Возможна рассрочка на 33 месяца.
Для получения более подробной информации звоните!
доброго времени суток
В новом районе, имени ВВ Путина есть очень красивый жк семейного характера.
В этом доме есть однушки и двушки с разной квадратурой, Если вы купите в течении месяца рамадан Вам будет предоставлена хорошая скидка от застройщика
я уже 5 лет продаю квартиры от застройщиков, без посредников
звоните чтобы получить консультацию
Эксклюзивное предложение от застройщика. Старт продаж нового ЖК
75000
1-комнатные от 47 м2
2-комнатные от 68 м2
3-комнатные от 90 м2
По всем вопросам:
Стелла
Общая площадь: 88 квадратных метров.
Комнаты: Изолированные друг от друга.
Состояние: Черновая отделка. Квартира представляет собой чистое поле для реализации любого дизайн-проекта. Все коммуникации подведены.
Расположение: Удобный, развивающийся район. Рядом остановки, магазины, школы и детские сады.
Детали: 7 этаж, правое крыло, номер квартиры 3А. собственник!!! так же есть два парковочных места возле лифта брали для этой квартиры цена договорная за парковки
ЖК Грин Парк — 40 м² по цене ниже застройщика на 14 000 ₽ за м²
Выгоднее, чем у застройщика.
Отличный вариант для жизни и инвестиций.
Удобная рассрочка без перегруза бюджета.
Цена в объявлении — 1 841 000 ₽ (первоначальный взнос).
Остаток — рассрочка на 29 месяцев по 46 875 ₽.
О квартире:
• Площадь: 40 м²
• Оптимальная планировка — легко зонируется в полноценную евродвушку
• Комфортный этаж
• Новый современный дом
• Перспективный район с развитием инфраструктуры
Почему это выгодно:
• Цена ниже застройщика на 14 000 ₽ с каждого квадрата
• Фиксация стоимости — защита от роста цен
• Удобный график платежей
• Подходит как для проживания, так и для перепродажи или сдачи
Если вы ищете квартиру с минимальным входом и понятной финансовой моделью — это один из самых сильных вариантов на рынке.
Звоните — подробно расскажу по условиям, покажу планировку и помогу оформить сделку быстро и безопасно.
продается уютная двухкомнатная квартира общей площадью 88 м2, с изолированными комнатами на третьем этаже! Высокие потолки создают ощущение простора. Из окон открывается вид во двор, что обеспечивает тишину и спокойствие. в квартире требуется ремонт, что позволяет воплотить ваши дизайнерские идеи, при необходимости из квартиры можно сделать уютную трехкомнатную.
Дом оборудован лифтами , а также открытой парковкой во дворе! Раздельный санузел добавляет удобства в повседневной жизни!
дата сдачи дома 2027 год!
СРОЧНО ! только наличный расчет ! Реальному покупателю торг!
Уютная однокомнатная квартира в живописном районе!
Представляем вашему вниманию великолепную квартиру с потрясающим видом на горные вершины. Расположена в развитом районе, где каждый найдет для себя все необходимое для комфортной жизни.
Основные характеристики:
• Общая площадь: 40 кв.м
• Этаж: 3/12
• Окна: выходят на горы
• Развитая инфраструктура в пешей доступности
Продуманная планировка позволяет максимально эффективно использовать каждый квадратный метр пространства.
Из окон открывается завораживающий вид на горные массивы, который будет радовать вас каждый день. Вдали слышен шум горной реки, а свежий горный воздух наполняет пространство особой энергетикой.
В непосредственной близости:
• Школы и детские сады
• Магазины и супермаркеты
• Фитнес-центр
• Парк для прогулок
• Остановки общественного транспорта
Успейте приобрести квартиру вашей мечты по выгодной цене! Звоните прямо сейчас, чтобы договориться о просмотре.
#недвижимость #квартира #горы #уютныйдом
Предлагается к приобретению уютная трехкомнатная квартира общей площадью 120 квадратных метров, расположенная на третьем этаже девятиэтажного дома по адресу: город Владикавказ, улица Калинина, дом 62а.
наличный расчёт! сдача на конец года, страхование Дом РФ
Цена 7 мил 150 тыс
Этот дом - отличный выбор для тех, кто ценит комфорт и удобство расположения. К вашим услугам продуманные жилые пространства, где каждый найдет уголок для себя. Благодаря большой площади квартиры, здесь легко можно организовать как общую зону отдыха, так и отдельные комнаты для каждого члена семьи.
Живя здесь, вы будете наслаждаться приятной близостью к разнообразным магазинам, таким как Славный, Наш и Византия, а также сможете посетить местный барбершоп Archi. Это идеальное место для тех, кто предпочитает иметь все необходимое под рукой без необходимости долгих поездок.
Приглашаем вас оценить все преимущества этой квартиры лично. Она ждет своих новых владельцев, готовых вдохнуть в нее жизнь и создать свой уникальный уголок уюта и гармонии.
Уважаемый покупатель, рады предложить Вашему вниманию просторную трехкомнатную квартиру в сданном доме. Общая площадь составляет 105 квадратных метров, что обеспечивает комфортное проживание. К квартире прилагается подвальное помещение и парковочное место. Расположение на четвертом этаже дома с лифтом делает эту квартиру еще более привлекательной. Мы уверены, что данное предложение Вас заинтересует. В квартире проведены начальные отделочные работы. Установлена система "теплый пол". Выполнена разводка электропроводки. Все необходимые коммуникации подготовлены. Проведенные работы создают отличную основу для дальнейшего ремонта.
Продаётся просторная трехкомнатная квартира площадью 133 квадратных метра на восьмом этаже девятиэтажного монолитного дома по адресу: город Владикавказ, улица Калинина, 62а(угол ул Калининаи Доватора,район магазина "Муравей").
Данный вариант идеально подойдёт тем, кто ценит комфорт и пространство. Квартира имеет удобную планировку, которая позволит новым владельцам воплотить в жизнь свои дизайнерские решения и создать интерьер своей мечты, так как помещение требует ремонта отличного шанса обустроить всё под себя.
Для молодых семей с детьми особенно актуальным будет наличие детской площадки прямо во дворе дома, а спортивная площадка предоставит возможность вести активный образ жизни без необходимости далеко уходить от дома. Удобство проживания дополняет подземная парковка, где можно оставить автомобиль вне зависимости от погодных условий.
Благодаря расположению дома у вас будет легкий доступ к различным заведениям, таким как барбершоп Archi и разнообразным магазинам, где можно приобрести все необходимые продукты( Например супермаркет "НАШ").
Приобретая эту квартиру, вы выбираете уютное и комфортное жильё с возможностями для индивидуального обустройства. Ждём вас на просмотр вашего будущего дома! Дом ещё не сдан,возможна переступка по ипотеке 8%.
СРОЧНО! ЛИФТ! СОБСТВЕННИК! 4 эт., "распашёнка"( восток-запад). Ремонт делали из качественных материалов для себя. Есть фото всех этапов.
Кухня-столовая 25,5 кв.м.Две спальни 19 и 22 кв м., прихожая 10 кв м.
Квартира очень светлая. Район активно развивается.
Видео вышлю по запросу.
Адрес: ул.Хадарцева 41, корп.1
Риелторов без конкретных клиентов НЕ беспокоить!!!
Продается квартира в ЖК Европейский 2 в городе Грозном в поселке Черноречье. Данная квартира общей площадью 36.7 м2 находится на седьмом этаже и продается в черновом варианте , что дает новому хозяину сделать ремонт под себя.
Рядом находится: Грозненское море, гостиница, реабилитационный центр, дельфинарий , лингвистическая школа и многое другое! Если Вас заинтересовала данная квартира, то звоните!
жк континенталь !
грозный , новый район ! премиум класс !
можно наличкой, так же в рассрочку!
есть еще много горячих предложений по недвижимости! пишите, проконсультирую! подберу лучший вариант для вас !
покупая недвижимость сегодня, вы создаете будущее детям и себе на завтра!
Бизнес-класс во Владикавказе. Сдача в ноябре 2026 года.
Закрытый двор без машин, подземный паркинг и FaceID.
Инфраструктура для своих: коворкинг, Хадзар, консьерж-сервис 24/7.
Надежный актив: фасад из стеклофибробетона и свободная планировка.
Устали переживать за безопасность детей во дворе и тратить время на поиск парковки?
Или ищете твердый актив, который защитит ваши деньги от инфляции и вырастет в цене?
ЖК "Произведение на Первомайской" — это не просто дом, это ваш личный безопасный контур и новый сценарий жизни во Владикавказе.
• Управляемая жизнь без бытового стресса
Вы заезжаете в отапливаемый подземный паркинг и поднимаетесь на скоростном лифте прямо на свой 8-й этаж. Работаете на удаленке? Спуститесь в резидентский коворкинг на первом этаже — это ваши 2 часа абсолютной тишины. Для встреч с соседями своего уровня и мероприятий предусмотрен современный внутридомовой Хадзар и творческие мастерские.
• Безопасный семейный контур
Ваши дети гуляют в закрытом дворе-экосистеме без машин. На территорию не попадет случайный прохожий — доступ только по цифровым ключам и Face ID, а по периметру работает круглосуточное видеонаблюдение. Внутри двора: "секретный сад" для тихого отдыха и современные игровые площадки с безопасным покрытием. В 10 минутах пешком — 6 школ и 7 детских садов.
• Твердый актив и свобода решений
Вместо дешевой штукатурки мы используем фасад из премиального архитектурного стеклофибробетона — здание не потеряет вид и через 20 лет, а значит, квартира сохранит высокую ликвидность. Квартира передается в свободной планировке, что позволяет реализовать индивидуальный дизайн и полностью адаптировать пространство под себя.
— Срок сдачи: Ноябрь 2026 года (монолитная технология с повышенной сейсмоустойчивостью).
— Потолки 3 метра: Максимум воздуха и естественного света за счет панорамного остекления.
— Никаких лишних вещей в квартире: Для жителей предусмотрены индивидуальные кладовые и колясочные.
— Сервис уровня отеля: Круглосуточный консьерж в лобби решит мелкие бытовые вопросы.
— Локация: 10-15 минут пешком до Дендрария, вокруг 7 фитнес-центров и супермаркеты.
Характеристики квартиры
— Комнат: 1
— Площадь: 50.9 м²
— Этаж: 8
— Планировка: Свободная
— Формат: Бизнес-класс
Остались сомнения или хотите посмотреть, как можно распланировать эти 50.9 квадратов?
Напишите в чат Авито слово "КАТАЛОГ" — я отправлю вам PDF-презентацию с вариантами планировок и актуальными ценами, а также предложу удобное время для визита в офис.
Ищете, где купить квартиру во Владикавказе? ЖК Произведение на Первомайской предлагает квартиры бизнес-класса от застройщика. Данная 1-комнатная квартира в новостройке отлично подойдет для семьи. Надежная монолитная застройка, купить квартиру с паркингом, безопасный двор, элитная недвижимость Владикавказ, свободная планировка, инвестиции в недвижимость, купить жилье рядом со школой и парком.
Бизнес-класс во Владикавказе. Сдача в ноябре 2026 года.
Закрытый двор без машин, подземный паркинг и FaceID.
Инфраструктура для своих: коворкинг, Хадзар, консьерж-сервис 24/7.
Надежный актив: фасад из стеклофибробетона и свободная планировка.
Устали переживать за безопасность детей во дворе и тратить время на поиск парковки?
Или ищете твердый актив, который защитит ваши деньги от инфляции и вырастет в цене?
ЖК "Произведение на Первомайской" — это не просто дом, это ваш личный безопасный контур и новый сценарий жизни во Владикавказе.
• Управляемая жизнь без бытового стресса
Вы заезжаете в отапливаемый подземный паркинг и поднимаетесь на скоростном лифте прямо на свой 9-й этаж. Работаете на удаленке? Спуститесь в резидентский коворкинг на первом этаже — это ваши 2 часа абсолютной тишины. Для встреч с соседями своего уровня и мероприятий предусмотрен современный внутридомовой Хадзар и творческие мастерские.
• Безопасный семейный контур
Ваши дети гуляют в закрытом дворе-экосистеме без машин. На территорию не попадет случайный прохожий — доступ только по цифровым ключам и Face ID, а по периметру работает круглосуточное видеонаблюдение. Внутри двора: "секретный сад" для тихого отдыха и современные игровые площадки с безопасным покрытием. В 10 минутах пешком — 6 школ и 7 детских садов.
• Твердый актив и свобода решений
Вместо дешевой штукатурки мы используем фасад из премиального архитектурного стеклофибробетона — здание не потеряет вид и через 20 лет, а значит, квартира сохранит высокую ликвидность. Квартира передается в свободной планировке, что позволяет реализовать индивидуальный дизайн и полностью адаптировать пространство под себя.
— Срок сдачи: Ноябрь 2026 года (монолитная технология с повышенной сейсмоустойчивостью).
— Потолки 3 метра: Максимум воздуха и естественного света за счет панорамного остекления.
— Никаких лишних вещей в квартире: Для жителей предусмотрены индивидуальные кладовые и колясочные.
— Сервис уровня отеля: Круглосуточный консьерж в лобби решит мелкие бытовые вопросы.
— Локация: 10-15 минут пешком до Дендрария, вокруг 7 фитнес-центров и супермаркеты.
Характеристики квартиры
— Комнат: 3
— Площадь: 83.2 м²
— Этаж: 9
— Планировка: Свободная
— Формат: Бизнес-класс
Остались сомнения или хотите посмотреть, как можно распланировать эти 83.2 квадратов?
Напишите в чат Авито слово "КАТАЛОГ" — я отправлю вам PDF-презентацию с вариантами планировок и актуальными ценами, а также предложу удобное время для визита в офис.
Ищете, где купить квартиру во Владикавказе? ЖК Произведение на Первомайской предлагает квартиры бизнес-класса от застройщика. Данная 3-комнатная квартира в новостройке отлично подойдет для семьи. Надежная монолитная застройка, купить квартиру с паркингом, безопасный двор, элитная недвижимость Владикавказ, свободная планировка, инвестиции в недвижимость, купить жилье рядом со школой и парком.
Продается 2-х( по факту 4 -х) комнатная квартира Мечты в двух уровнях на ул. Хадарцева 41/1..Общая площадь 135 м2 на солнечной стороне. Квартира очень светлая и уютная. Планировка: на первом уровне кухня - гостиная 31 м2, кабинет -16 м2, совмещённый санузел и просторная прихожая. На второй уровень ведёт бетонная лестница,по которой человек ростом 1,90 поднимется на второй уровень не нагибаясь. На втором уровне спальня - 18 м2, детская комната - 30 м2, санузел и большой коридор. Высота потолков на мансарде,у окон - 260 см. Потолки ровные по горизонтали. Дом кирпичный,6 этажей, пассажирский ЛИФТ, застройщик Дзебисов. Во дворе дома детская площадка,открытая автостоянка. Рядом Суворовское училище. В шаговой доступности школа, спортивные сооружения, остановка общественного транспорта. Собственник один, без обременения. Все документы готовы к сделке. Реальному покупателю скидка . Просмотр квартиры в удобное для вас время. По факту кварщ находится по адресу ул. Хадарцева 41к1. Циан упорно ставит 37 номер