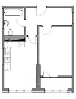
Продаётся 1 - комнатная квартира площадью 46,8 м² на 6 этаже. Квартира расположена в жилом комплексе бизнес-класса "Произведение на Первомайской", который представляет собой современный проект, состоящий из четырех 17-этажных корпусов. Строительство ведется по монолитной технологии с применением передовых инженерных решений, обеспечивающих повышенную сейсмоустойчивость зданий.
В проекте представлены разнообразные типы квартир: от 1-комнатных до 4+ комнатных. Площадь квартир варьируется в диапазоне от 40,8 м² до 262 м². Высота потолков в помещениях составляет от 3 метра.
Ключевой особенностью проекта являются свободные планировки, которые дают полную свободу для создания любого жизненного сценария. А также есть отделка White Box, что позволит будущим жильцам сразу приступить к реализации собственного дизайн-проекта. Среди нестандартных форматов жилья предусмотрены двухуровневые пентхаусы и квартиры с просторными террасами.
Комфорт и безопасность
Для комфорта и безопасности жителей в ЖК "Произведение на Первомайской" реализована многоуровневая система защиты. Территория комплекса полностью закрыта от посторонних и свободна от автомобилей, что создает безопасную среду для прогулок. По всему периметру ведется круглосуточное видеонаблюдение, а доступ осуществляется по цифровым ключам. В каждом подъезде установлены пассажирские и грузовые лифты. Для автовладельцев предусмотрен подземный паркинг с прямым доступом на лифте на жилой этаж. Для удобства жителей оборудованы колясочные, велопарковки и индивидуальные кладовые помещения. В лобби круглосуточно дежурит профессиональный консьерж-сервис.
Архитектура
Архитектурная концепция ЖК "Произведение на Первомайской" разработана с целью создания нового, современного облика городской среды Владикавказа. Форма зданий отличается лаконичностью и чистотой линий. В отделке фасадов используется премиальный материал нового поколения — архитектурный стеклофибробетон. Этот прочный, долговечный и эстетичный материал, применяемый в знаковых мировых объектах, обеспечивает не только уникальный внешний вид, но и сохранение его на десятилетия. Панорамное остекление и французские балконы наполняют квартиры светом и воздухом, создавая ощущение простора.
Благоустройство
Благоустройство территории ЖК "Произведение на Первомайской" представляет собой полноценную экосистему для жизни и отдыха. Ландшафтный дизайн выполнен с использованием геопластики, создавая разноуровневое озелененное пространство с зонами для тихого отдыха, такими как "секретный сад". На территории обустроены современные детские игровые комплексы с безопасным покрытием и многофункциональные спортивные площадки. Уникальными элементами инфраструктуры являются собственный коворкинг, мужские и женские творческие мастерские, соседский центр (хадзар) и дворовой амфитеатр для проведения мероприятий.
Окружение и досуг
Жилой комплекс "Произведение на Первомайской" расположен в районе с развитой социальной и досуговой инфраструктурой. В радиусе 1015 минутной пешей